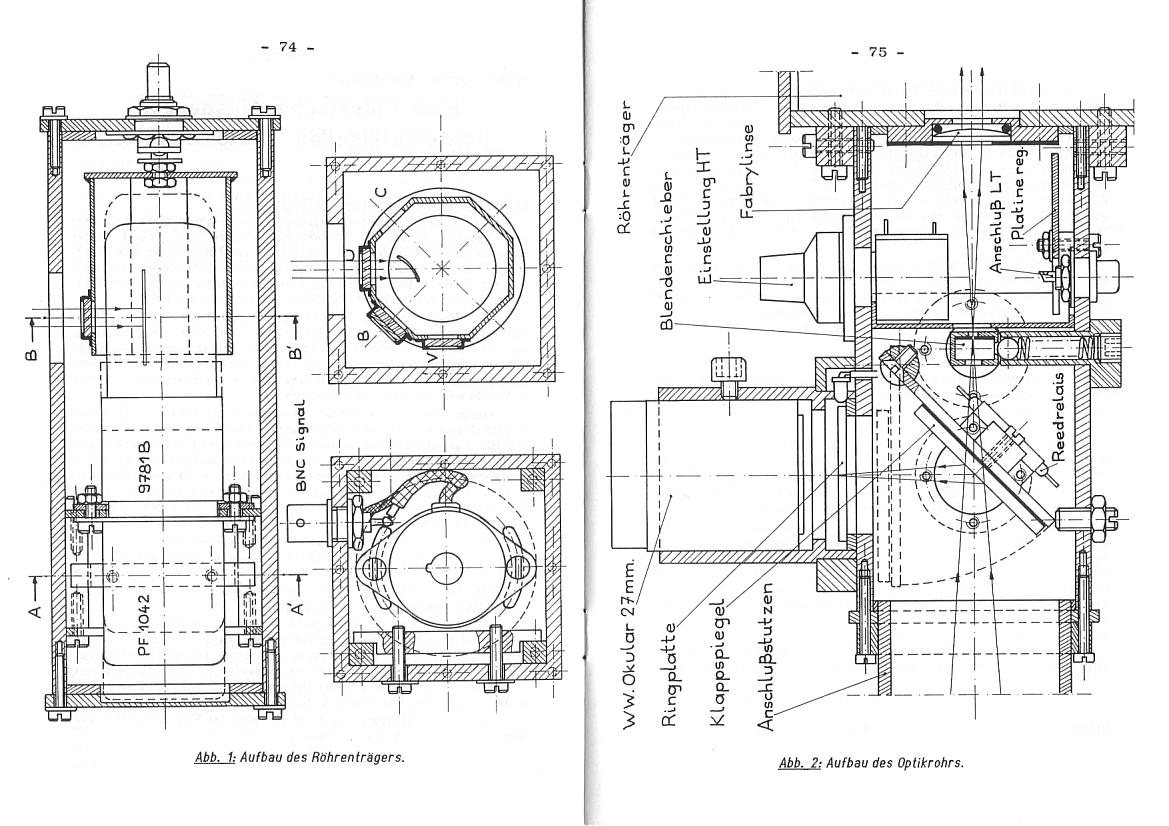
BAV Rundbrief 2/1993 Seite 74-75